84 Lumber Logo Location Pin Facebook Icon Twitter Icon Twitter White Icon LinkedIn Icon YouTube Icon Pinterest Icon Instagram Icon
White Pin

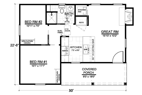
Ross Run Tiny House Plans

The Ross Run Tiny House Plans from 84 Lumber makes for tiny living without cramped living. Spend your evenings relaxing in front of the fireplace in the large Great Room, or use the ample covered porch for lounging and enjoying the view to your own piece of paradise. The second bedroom accommodates kids, guests, or could even double as a craft room or home office. This home would make a perfect guest-house or weekend escape.
Ross Run - 84202 - Front Rendering 1140x540
 
 

540 sq.ft.

Ross Run Kitchen Thumbnail Ross Run Kitchen
  • House width:     22’-6”
  • House depth:     30’
  • Stories: 1
  • Bedrooms:         2
  • Baths:                  1
  • Ridge height: 15'
  • Roof pitch:        6/12
  • Roof Framing:    Rafters
  • Porch: 108 sq. ft.
  • Ceiling Height:   8'
  • Foundation:       Crawl, Slab
  • Exterior walls:    2x4

Feature sheet:

Download the feature sheet for this home.  


Download PDF
Floor plan Thumbnail Floor plan
Ready to Buy? Find Your Store